The Manual

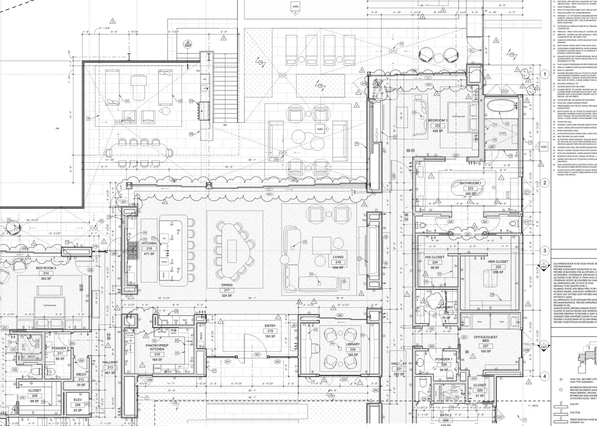
A significant portion of the process is devoted to crafting a robust set of drawings, documents, and specifications. This forms the backbone of a successful project, giving clients complete clarity on what is going into their home, while providing builders with the information they need to execute it properly.

Previous
Previous

THE SKETCH

Next
Next

STEWARDSHIP